長野の建売住宅、新築、ハイレベルなローコスト住宅ならH + L House(エイチエルハウス)

長野の建売住宅、新築、ハイレベルなローコスト住宅ならH + L House(エイチエルハウス)

伊那市エリアの建売住宅・土地情報 いな住まいる補助金対象【省エネ基準適合住宅】《住宅ローン減税対応》商業施設が充実した生活に便利な立地 境B

SOLDOUT

いな住まいる補助金対象【省エネ基準適合住宅】《住宅ローン減税対応》商業施設が充実した生活に便利な立地 境B

周辺に商業施設やコンビニ、飲食店などあり便利な立地

期間限定いな住まいる補助金150万円対象住宅です!

 【シンプルながら洗練された空間の家】【省エネ基準適合住宅】《住宅ローン減税対応》

市街地の便利な立地の住宅で新しい暮らしをはじめませんか?

各商業施設や銀行・病院等が徒歩圏内!
駒ヶ根市街地・箕輪町方面への通勤アクセスも良好◎

 【おすすめポイント】
■対面システムキッチン(食器洗乾燥機付き)や追炊き機能付のユニットバス、温水洗浄便座付きのトイレや三面鏡付きシャンプードレッサー等設備も充実
■駐車スペース2台以上駐車可能
■弊社売主のため仲介手数料不要!お得にご購入いただけます。

 ---周辺環境---

■コンビニ・ドラックストアなど各商業施設が徒歩圏内の好立地
■駒ヶ根・箕輪町方面へのアクセスも良好!
■2区画の整地された住宅地
■弊社売主のため仲介手数料不要!お得にご購入いただけます。


※該当の補助金は令和8年3月31日を以って終了予定となります。対象条件や期間延長など詳細についてはお問い合わせください。

伊那市境B棟 外観

SOLD OUT

ご成約
ありがとうございました。

リビング

SOLD OUT

ご成約
ありがとうございました。

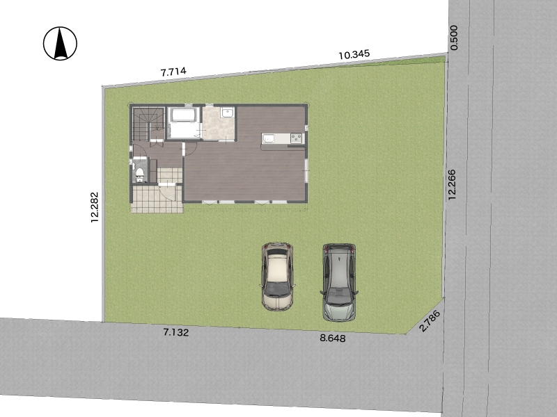
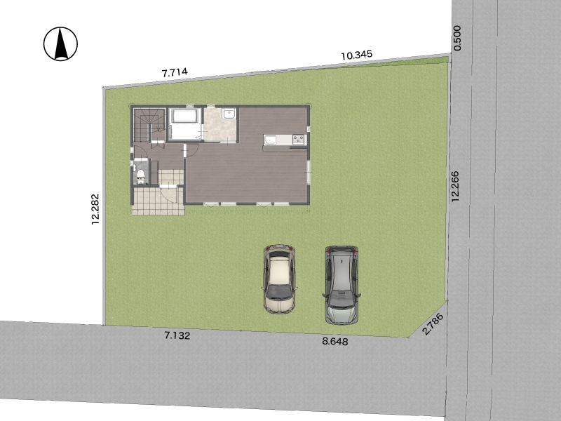
間取図

SOLD OUT

ご成約
ありがとうございました。

価格据え置きキャンペーン

SOLD OUT

ご成約
ありがとうございました。

案内図

SOLD OUT

ご成約
ありがとうございました。

返済例

SOLD OUT

ご成約
ありがとうございました。

配置図

SOLD OUT

ご成約
ありがとうございました。

LDK

SOLD OUT

ご成約
ありがとうございました。

LDK

SOLD OUT

ご成約
ありがとうございました。

キッチン

SOLD OUT

ご成約
ありがとうございました。

ウォークインクローゼット

SOLD OUT

ご成約
ありがとうございました。

洋室

SOLD OUT

ご成約
ありがとうございました。

バス

SOLD OUT

ご成約
ありがとうございました。

洗面脱衣所

SOLD OUT

ご成約
ありがとうございました。

  • 建物プラン:Good fit / Just28
  • 間取り:3LDK
  • 施工床面積:96.88㎡(29.3坪)

住宅の購入・建築をお考えのお客様へ

本件はおかげ様でご成約となりました。

お客様のご要望を下記お問い合わせフォームより私共にお聞かせ頂ければ

同等の住宅をご紹介させて頂きます。

お気軽にお問い合わせください!

お問い合わせフォーム

お名前
郵便番号
住所
メールアドレス
電話番号
ご希望エリア
ご希望プラン
土地所有の有無  
総合ご予算
(土地代含む)
ご家族人数
購入予定時期
その他・備考
お問い合わせを行う前に「個人情報保護方針」を必ずお読みください。
「個人情報保護方針」に同意いただいた場合は「確認画面へ進む」のボタンをクリックしてください。
ご入力いただいた情報は、弊社が定める「個人情報保護方針」に基づき、取り扱いに十分に注意を払い、利用・運用を行います。